Email us at:
pej@pejnron.com
ron@pejnron.com

tiempo
usa1 argentinaflag

Click the sun to see the
weather in Buenos Aires!

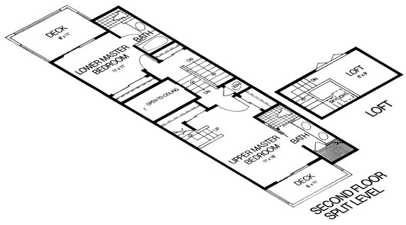
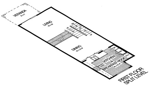
Floorplan

This shows the floorplan of our house.  We spent 10 years in this house and loved it.  If it wasn’t for moving to Buenos Aires, we’d enjoy another 10 years here!

If you like, click on the below PDF button to download a high resolution version of the floorplan shown below.

FloorPlan PDF

  This shows all the stairs we had to climb,   You were very mad if you got down to the  front door and discovered you forgot your car keys on the dresser!

This is a layout of the complex grounds, our unit was #6 in the upper right hand corner