|
Wednesday January 1st, 2003 – My friend Alberto called and asked if I wanted to go to the Ecological preserve again, the one we tried to go to on Christmas day but it was closed. Ron was feeling some pain in his leg so he decided to stay home. We rode our bikes out to the preserve and it was open, turned out it is a huge park, I was amazed, it’s kilometers long, mostly just trails with natural brush and plant life, but there are some picnic areas with manicured grass and picnic tables. The park was packed with families enjoying a wonderful summer day along the Rio de la Plata.
Friday January 3rd, 2003 – We met the architects to go over the final floor plan design. We are so excited!
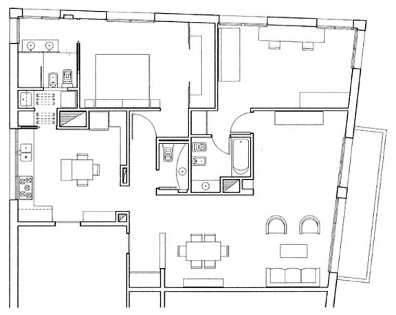
This is the original floor plan, there are windows on 3 sides of the apartment facing West, North and East. The upper left hand corner is the maid’s quarters with windows on 2 sides (lucky maid), then the next room to the right is a bedroom, then the next room to the right is the master bedroom. Neither bedroom had an in-suite toilet. The kitchen is on the left, then the next room to the right is a guest bathroom, then another bathroom and then a 3rd bedroom which the previous owners had knocked down the wall to turn into a dining area, joining it with living area. The service entrance into the kitchen is at the lower left, then the main elevator and then the living area.
New Floorplan for Remodel
This was the plan for the apartment remodel. The upper left which was the maid’s quarters is now an in-suite toilet with fantastic views (we’re on the 19th floor) and an open shower area. The bathroom adjacent to the kitchen is removed to make the kitchen larger and allow for a center table and another raised work area, I told Alberto this area is for making ñoquies and he has to teach me how to make them after we move in.. The old hallway space between the bedrooms is used to make an in-suite bathroom with the office / guest room which will have large pocket doors so that we can open up the room for use during large parties, or close off the office for smaller parties and privacy. A guest reception toilet is created and the foyer is removed to open up the space for when you first walk into the apartment off the elevator, you get a view through the balcony doors.
Can’t wait!
We wrote a letter and had the architects translate it for us into proper formal Spanish. We wanted to give a letter to our neighbors above, below and to the side of us and the porteros (our doormen) letting them know the schedule of the work, that we would abide by the hours set by the homeowner’s association for noise and if there were any problems, contact the architects, not us! I was thinking of making a little wicker gift basket of goodies and gifts, with wine, cheese, crackers, chocolates, coffee, etc. as kind of a peace offering for the noise and dust we were going to be generating with the remodel. I asked an Argentine friend about this and he thought the letter would be a good idea so that our neighbors would know when the work would finish, but the basket of little gifts would be considered very strange and odd and he suggested I didn’t do that. Taking his advice we just slid the letter under our neighbor’s kitchen doors. We hoped they were going to be on summer holiday and would miss the majority of the noisy work.
 |
Gratuitous cat picture, isn't she sweet?
Monday January 6th, 2003 – Day 1 of the apartment remodel begins, we were dieing with anticipation to see the progress. We showed up at the apartment at 6 pm and the workers were still there. WOW! They had already removed a large part of the ceiling in the old dining room and knocked a few holes in the walls. The construction here is very different then in the USA, walls are made out of red bricks, cemented together, then coated with many layers of plaster, not like gypsum board walls nailed to 2 x 4 wood struts like in the USA. This makes for very solid walls, but it’s a bitch when you’re trying to hang a picture as you need concrete nails or a diamond tipped drill in order to put a nail in the wall. We were looking at the walls they were breaking down and it looked very impressive.
The foreman was there and we introduced ourselves, we were grinning like Cheshire cats at all the activity, bricks, dust, hammers, saws, all cool guy stuff. He started to explain something about the wall we wanted to knock down, we weren’t sure exactly what he was saying but it didn’t sound good. We thought he was saying that we wouldn’t be able to remove the wall. I hoped it was just my lack of understanding and that there really weren’t any problems.
Ron grabbed some electric wires hanging from the ceiling!
 |
Tuesday January 7th, 2003 – We received a call from the architects and it appeared that we already had our first “challenge” with the remodel. The wall that we wanted to knock down turned out to be a load bearing wall, the architects were apologizing and saying that this form of construction is very unusual and wanted us to come over to the apartment so that they could show us what was going on. The new apartment is only about 1 block from where we are now living so it’s a quick walk over and we were there practically before they hung up the phone. Day 2 of the remodel was already showing great signs of progress as more of the horrendous dropped ceiling was being ripped down. The architects, Alberto and Ricardo, showed us the concrete wall with the metal reinforced rebar wire running through it, you could see where they tried to use a jack hammer to break through the wall. They said they needed to check with an engineer to see if they could install a beam to support the ceiling and then move the wall over to where we originally planned it to go. They also needed to talk to the home owner’s administration to get permission. Even though the wall is within our apartment walls, if it’s load bearing it’s part of the building and can’t be removed without the proper permits.
 |
Ron looks at the jack hammered reinforced load bearing wall
I was pretty disappointed in the news, we had spent so much time on the design of the plans, it was very discouraging to think we wouldn’t be able to do the things we wanted.
Wednesday January 8th, 2003 – Ron had replaced one of the florescent lights in the kitchen recently and I walked in to hear the lights fluttering like they were going to explode. I called Ron in to check on what he had done and as he got up on a stool to have a look a huge dragon fly shot by his head, the fluttering was just the dragon fly in the lights. The cats were very much amused as they love to catch and eat dragon flies, Ron was relieved that he hadn’t short circuited something when he changed the lights.
Friday January 10th, 2003 – Day 5 of the remodel, we love going over to the apartment every night, checking the progress of the remodel and taking pictures.
The wall is now gone between the two bedrooms
Went to dinner with our friend Russell and some visiting friends. It was POURING rain, the storms here can be pretty intense and it took us about 10 minutes before a cab went by that was available.
Saturday January 11th, 2003 – I laid out on our balcony to get some sun before our upcoming trip to Mexico. I went over the floorplans for the apartment remodel coming up with options for the new constraints of not being able to move the load bearing wall. I studied the plans and came up with 10 new options. I was laying facedown on a towel on the balcony with the papers spread out before me as I studied them. Of course there is something with paper and books and cats, whenever they see you using paper or reading books, cats just have to lay on top of them. Scarlett and Loretta were both laying all over my drawings as I was trying to push them out of the way to continue my work.
 
It was REALLY a hot today and when I walked into the Go away! bedroom Lorretta was taking a knap and I guess he thought I'm trying to sleep here! this was the easiest way to cool down
Monday January 13th 2003 - We met with the architects to go over their new floor plans for the house now that we had some restrictions with the load bearing wall, I showed them my 10 options I came up with and it seemed we had very similar ideas and were able to settle on a new design. Although we were first very disappointed that we couldn’t do the design we had spent so much time on as most things work out, I think this design is actually better the one we had previously.
Final design!
Friday January 17th, 2003 - Week 3 of the remodel comes to an end!
Saturday January 18th 2003 – Ironically the same day that our remodel started, January 6th, someone started remodeling an apartment right next to our current apartment, so we were not spared the constant pounding and banging all day of workers breaking down concrete walls. There was a lot of dirt and dust that was being generated and ended up on our balcony. The cats were getting filthy in dust even though I was sweeping it daily. I told Ron that as soon as the workers finished pounding and generating dust that we’d give the cats a bath. Well today was the day for cat baths! Loretta was very good and took his bath like a trooper, but Scarlett howled like we were skinny her alive. After about an hour of work and many towels of drying we now had nice, freshly bathed pussy cats. I took them out on the balcony with the hot sun beating on us and brushed them trying to get them dried off.
 
I am SO humiliated!
 
Scarlett says, "HELP, SOMEBODY HELP ME, they're killing me!"
"Sunshine.... on my belly.... makes me happy!"
Sunday January 26th, 2003 – Alberto asked if we wanted to go to the city of Tigre on our bikes. Tigre is about 30 km north of the city and is kind of a weekend getaway. This sounded like a lot of fun so we rode our bikes to the Retiro train station, boarded, and then got off at a stop a few stations outside the city. This is where a bike trail starts along the coast line. We got off the train and started bicycling along the coast, it was a beautiful day. We were getting hungry and we wanted to stop for lunch. There were several restaurants with outside seating all in a row and they were all trying to get us to sit down at their restaurant. Alberto talked to the different waiters and we finally settled on one, he told me, “They were all the same price for parrilla, but this one included salad!” It felt like being on vacation eating outside and watching the families play along the coast.
On the train
Monday January 27th, 2003 – I’ve been asking Ron to build me a CD rack ever since we moved here, in California I had these rotating plastic CD racks, they were ugly but very efficient in storing lots of CDs. With the purchase of the new apartment Ron found the enthusiasm to finally build me the racks. It took him a few weeks to make them but they turned out great.
 
Bearing base so that the racks rotate Before Painting, these 2 racks will hold over 700 CDs
 |
The architects came up with a new idea for the floorplan of the apartment which involved pushing out the bathroom wall into the living room about 18 inches. Ron noticed that there was a thin area between the bathroom and a support column that they were just going to brick in and Ron measured it and saw that his CD racks would fit perfectly in the space. Ron gave the necessary measurements to the architects and then they measured the CD racks themselves so they would have the proper measurements for the wall they were going to relocate. We showed up that evening after the workers had left and Ron measured the opening. The mason had completed the wall and had already started putting a coat of plaster on it. Ron couldn’t believe when he measured the opening and it wasn’t deep enough by 8 centimeters. Hmmmm…… we gave them the proper measurements and then they measured the CD rack themselves, what happened?
 
Hmmmmm, this isn't going to fit Not from this angle either!
 
What could have one wrong??
We called Alberto and Ricardo to tell them of the problem and they said they’d meet us at the apartment. After a lot of measuring, then re-measuring and scratching of heads, he said they’d just move the wall they had just built 8 centimeters over. I couldn’t believe that they would move a brick wall that they had just built just to accommodate Ron’s CD rack. I told Ron we’ll just keep the CD rack in the office and just use this area as shelf space. Alberto told us it was no problem to move the wall, the concrete hadn’t fully hardened between the bricks yet and it’s better to fix the problem now then try to work around it later. I thought about it, and after all it was their fault the wall was built in the wrong place, so I just shrugged my shoulders and said, “Ok, move the wall”.
Tuesday January 28th, 2003 – Ron went to get the last $400 USA of the deposit money from Rafael, the realtor we originally tried to buy the apartment from. I stopped going with Ron to try and collect our deposit money as it was just a huge waste of time because each time we showed up they’d avoid us for 20 minutes, then give us some lame story on why they didn’t have the money, if they didn’t have the money why not just come over and tell us right away instead of making us wait? When Ron got home he said that Rafael found out that we had purchased the apartment and he put Ron on the phone to talk to a colleague of his that spoke English. Ron explained the whole story to this guy, including the fact that it was Rafael’s fault that the original deal fell through. We were worried that Rafael would find out about us purchasing the apartment and trying to come after us for a commission even though he was not our realtor and we never hired him. We knew we were in the right, but that still wouldn’t have helped us if he took us to court as we’d have to hire a lawyer to defend us, etc. and we certainly didn’t want to do that. After explaining all this to the person on the phone the man asked Ron if he could at least split the $400 with Rafael to cover his expenses in promoting and advertising the apartment. Ron thought this prudent just to get the hell out of there with $200 and be done with it. We called Olga to tell her what happened just in case Rafael tried to call her to get some of the commission we paid Olga. Luckily Olga documented everything and she was very confident that with all her documentation, Rafael would be a fool to try and take us to court. This made us feel a little better, a little.
We went over to see the apartment and sure enough, they had moved the entire wall over 8 cm, less then a bricks thickness. I’m sure the mason was pissed at us but he seemed to be happy and smiling. Ron then measured the height of the opening. We had told the architects the CD racks were 2.2 meters tall and the opening was 2.2 meters from the floor, but they had then put in a 15 centimeter base to the area and the opening wasn’t measured from that but from the floor. The mason had already finished it and was putting a coat of plaster on it. We made another call to Alberto and Ricardo, the architects.
 
They remove the wall they just built
 
The plumber's bench for the pipe work I feel sorry for the mason, he builds a wall then the electrician chisels channels for the pipes, then he repairs them, then the plumber comes along and does the same thing.
Wednesday January 29th, 2003 – The previous week Ron had gone to “Easy”, kind of like a “Home Depot” home improvement center. He had seen a display for safety doors and they had been very aggressive in calling us to try and get our business. We mentioned this to Olga and she recommended a business that she had known for years. We went to look at their doors and wall safes. The man at the store seemed very informed on the ways to protect your home and valuables and showed us one of their doors with bullets shot into it. I certainly hope we don’t have to stop gunfire with our new door!
We then took a bus to go to a marble store that the architects had recommended. Some of the marble was incredible and like everything else the stuff I liked was the most expensive. I guess that’s why they put a higher price tag on it, because it’s unique and beautiful. There are many local Argentine marbles but also plenty of imported marbles, with the recent devaluation they said that they are no longer importing much marble because no one can afford it, so the choices on imported marble are much less. Looking at all the choices becomes overwhelming very quickly and you just want to forget the whole thing.
To stop from feeling overwhelmed, we try and break things down into single tasks. Today we wanted to pick a microwave for the new apartment. Most microwaves here are very “functional”, meaning ugly white plastic with huge knobs. They all look alike, so today’s task was to find a cool, trendy, pretty microwave. We looked at 3 different stores before finding one that didn’t look like all the others. We were so happy to find an attractive microwave that we didn’t notice it was HUGE. We bought it and got it home and thought we should plug it in just to make sure it worked. Putting it on the counter I told Ron, “My God, you could microwave a turkey in this thing!” I sent an email to the architects with the dimensions of the monstrosity microwave beast for the new kitchen.
We went over to see the apartment and saw that the mason had chiseled out 15 cm from the top of the CD rack opening. Ron measured and smiled, saying everything was finally perfect. I told him, “Are you sure? Please measure again!”
 
Cool guy stuff! Acetylene torches for the plumber
 
New pipes for the toilets Ron in the kitchen
Almost every night Ron and I enjoy playing cards before dinner. This gives us time to spend some time together just talking, have a gin and toro and relax. This is especially nice in the summertime as we sit our balcony and enjoy the pleasant summer evenings. We have a hanging pot that I bought in the Recoleta cemetery area and every night, after the sun goes down slightly, a big, fat spider comes out and starts spinning and correcting any imperfections in his web. Every night I say, “Hola Amigo, comó andas?” He’s quite a large and imposing spider and I wonder how I’m going to transfer him to the new apartment on the 19th floor without freaking out and squishing him!
¡Hola Amigo! ¿Comó andas?
Thursday January 30th, 2003 – Today’s task was to look at stores that manufacture closets. Free standing dressers are uncommon here as the dresser drawers are usually built into the closets. As usual, the architects gave us three recommendations on places to check out and compare quality and price. This place was called “Occhipinti” and we really liked the quality of the materials and the construction of the displays.
On the way home from looking at the closets we saw a small bathroom store on Juncal that had really nice tiles and sinks. We went inside to have a look around and talk to them. The store owner spoke pretty good English and we were able to tell him what we were looking for. Although the store was small I really liked the ideas and samples he was showing us, I figured he would be more expensive then a larger store, but I really liked the idea of giving some of our business to a small “mom and pop” merchant and supporting the stores in our neighborhood. I also liked the guys creativity and style. We told him that we would be contacting the architects to have them return to the store with us to talk about colors and bring samples of the marble to them.
 
I think they got it right this time! What a difference 8 centimeters makes
Friday January 31st, 2003 – Went to see the architects and pay them. We have to give them a little bit of money on Fridays because the workers get paid weekly.
 
The new CD space and bathroom wall, this will be the story we tell for many years
 
These were the original windows, they wanted to just repair them but they were in bad shape, we had them repair one and it wasn't very good and we decided on replacing them
We then went out to a Korean restaurant with our friends Felipe, Ricardo and Ariel. The Korean restaurant had these table top grills to grill the meat in front of you, they were propane and there were hoses dragged all over the room to the different tables. I could not believe it, it looked very unsafe as the waiters where bustling about the room, tripping over gas hoses. After a very good dinner we walked over to a mall area to have a cup of coffee and dessert. We passed by a small theater on Ave Corrientas and Felipe asked if we wanted to see a show. Of course this is Argentina and the show didn’t start until 11:30 pm. Felipe said it would just be some musicians playing a selection of tango music which sounded great to us so Felipe got us some tickets for 5 pesos a piece. We had time before the show to get a coffee and some dessert so we continued onto the shopping mall area. It still amazes me how Argentina comes to life at night, the place was packed. After a quick coffee and some ice cream we headed back to the theater for the show. The theater was a very elegant place with beautiful wood walls and ornamentation, they seated us quite near the stage and we ordered a bottle of champagne. The show was just 3 men, one playing a piano and two sitting side by side on an electronic piano. They didn’t sing, just played varies pieces of different tango music. They were very good and it was interesting to see the crowd around us, most were elderly couples enjoying a Friday night out after dinner, sipping water or coffees. The applause was enthusiastic and long, a very nice show!
|